- Zdvih (m): 3 m
- Nosnosť (kg): 500 kg
Yale Ručný reťazový kladkostroj Yalelift LHG - vozík A 2000kg
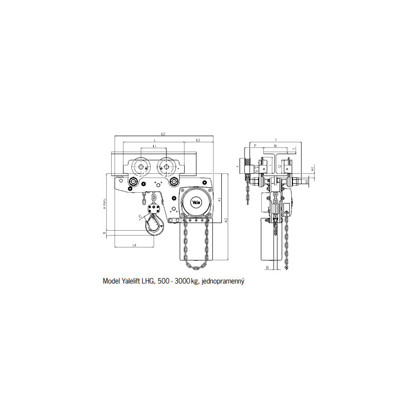
Ručný reťazový kladkostroj model Yalelift LHG s integrovaným pojazdom nízkej stavebnej výšky je zlepšeným modelom Yalelift IT. Zobraziť viac
Fotografie sú ilustračné
Ručný reťazový kladkostroj Yalelift LHG - vozík A 2000kg
Ručný reťazový kladkostroj Yalelift LHG - vozík A
Nosnosť: 2000 kg
Ručný reťazový kladkostroj model Yalelift LHG s integrovaným pojazdom nízkej stavebnej výšky je zlepšeným modelom Yalelift IT. Kdekoľvek je potreba ešte nižšej stavebnej výšky, tak model Yalelift LH je ideálnou voľbou. Špeciálne vyvinuté presmerovanie a vedenie reťaze umožňuje bremenový hák so spodnou kladnicou ťahať z boku vedľa kladkostroja nahor pod nosník. Osvedčený a plynulý nastavovací systém umožňuje rýchlu a jednoduchú montáž pojazdu. Kolieska sú dimenzované pre maximálny sklon príruby nosníka 14%, optimálne vlastnosti pojazdu sú zaručené vreckovými guličkovými ložiskami s trvalým mazaním. Kladkostroj má výborné valivé vlastnosti vďaka oceľovým kolesám nasadeným na premazané a uzavreté guličkové ložiská.
Vlastnosti:
- Všetky modely série LH do nosnosti 3000 kg sú vybavené jedným prameňom reťaze.
- Modely od nosnosti 5000 kg majú dvojpramennú reťaz.
- Pojazdy do nosnosti 5000 kg ponúkame pre dve šírky príruby nosníka, typ A pre šírku príruby do 180 mm a typ B pre šírku do 300 mm.
- Verzia Yalelift IT s nízkou stavebnou výškou je nastaviteľná, aby vyhovovala rôznym profilom nosníka (napr. INP, IPE, IPB).
- Súčasťou dodávky je zariadenie proti pádu a preklopeniu.
Tieto zdvíhacie zariadenia nie sú určené pre prepravu osôb!
Technické údaje:
- Nosnosť: 2000 kg
- Zdvih: 3 m
- Vozík: 82 - 180 mm
- Hmotnosť pri štandardnom zdvihu: 61 kg
- Počet prameňov reťaze: 1
Technické parametre
- Zdvih (m)3 m
- Nosnosť (kg)2000 kg
- Hmotnosť pri štandardnom zdvihu 3 m61 kg
- Počet prameňov reťaze1
- VozíkTyp A - 82-180 mm
- Variant3m,2000kg


